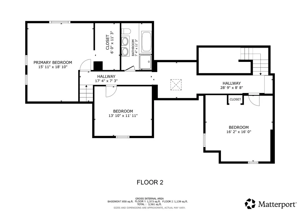
Charming 1800s Schoolhouse Reimagined. Step into history with this fully refinished 3-bedroom, 2-bath home. Thoughtfully restored and beautifully updated, this property perfectly blends timeless character with modern comfort. The first floor welcomes you with a spacious family room-once the original classroom-featuring exposed beams that showcase the home's unique history. The stunning kitchen boasts granite countertops, modern cabinetry, and flows seamlessly into a bright and open dining area-perfect for entertaining. A second living area, filled with natural light from sliding glass doors, opens to a lovely deck where you can enjoy your morning coffee surrounded by nature. Upstairs, you'll find three generous bedrooms and a beautifully designed full bath with both a tiled shower and a soaking tub. Every detail has been carefully chosen to preserve the home's charm while offering contemporary convenience. The property also comes with a town approved permit to build a detached garage to be priced separately if you are looking for more space! Set on a peaceful wooded lot, this property offers privacy and tranquility while keeping you close to all that Deerfield has to offer. Whether you're drawn to its history, craftsmanship, or setting, this one-of-a-kind home is not to be missed! Lastly, the seller is a licensed builder and is willing to construct a garage after closing, offering buyers the opportunity to customize design and placement. Open House 12/6 1pm-3pm!

Listing Tools

Property Details of 243 Middle Road

Property Details

Interior Features

Exterior Features

Utilities and Appliances

Map Location

Driving Directions

Broker Reciprocity 

Copyright 2025 PrimeMLS, Inc. All rights reserved. This information is deemed reliable, but not guaranteed. The data relating to real estate displayed on this display comes in part from the IDX Program of PrimeMLS. The information being provided is for consumers’ personal, non-commercial use and may not be used for any purpose other than to identify prospective properties consumers may be interested in purchasing. Data last updated December 5, 2025 1:26 PM EST

 

Hi there! How can we help you?

Contact us using the form below or give us a call.

Send Us A Message:

I agree to receive marketing and customer service calls and text messages from Peloquin Realty & Property Management. To opt out, you can reply 'stop' at any time or click the unsubscribe link in the emails. Consent is not a condition of purchase. Msg/data rates may apply. Msg frequency varies. Privacy Policy.

Do not fill in this field:

This site is protected by reCAPTCHA and the Google Privacy Policy and Terms of Service apply.

Hi there! How can we help you?

Contact us using the form below or give us a call.

Send Us A Message:

Do not fill in this field:

This site is protected by reCAPTCHA and the Google Privacy Policy and Terms of Service apply.

Hi there! How can we help you?

Contact us using the form below or give us a call.

Send Us A Message:

Do not fill in this field:

This site is protected by reCAPTCHA and the Google Privacy Policy and Terms of Service apply.

Do not fill in this field:

This site is protected by reCAPTCHA and the Google Privacy Policy and Terms of Service apply.

Do not fill in this field:

This site is protected by reCAPTCHA and the Google Privacy Policy and Terms of Service apply.

Do not fill in this field:

This site is protected by reCAPTCHA and the Google Privacy Policy and Terms of Service apply.

$

Do not fill in this field:

This site is protected by reCAPTCHA and the Google Privacy Policy and Terms of Service apply.