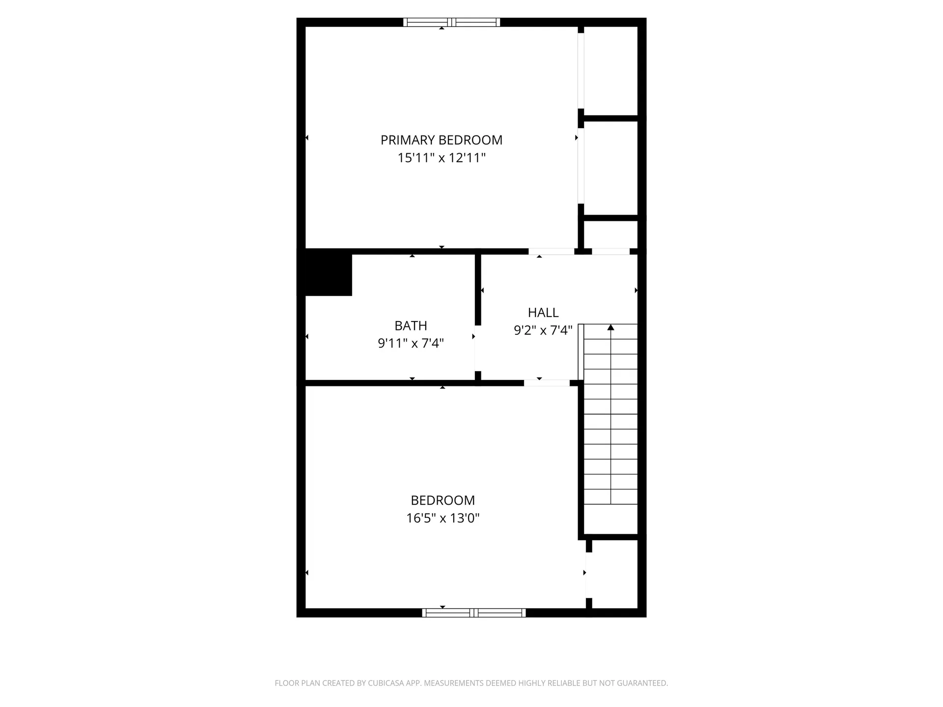
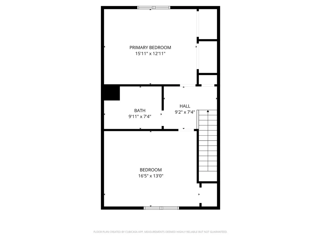
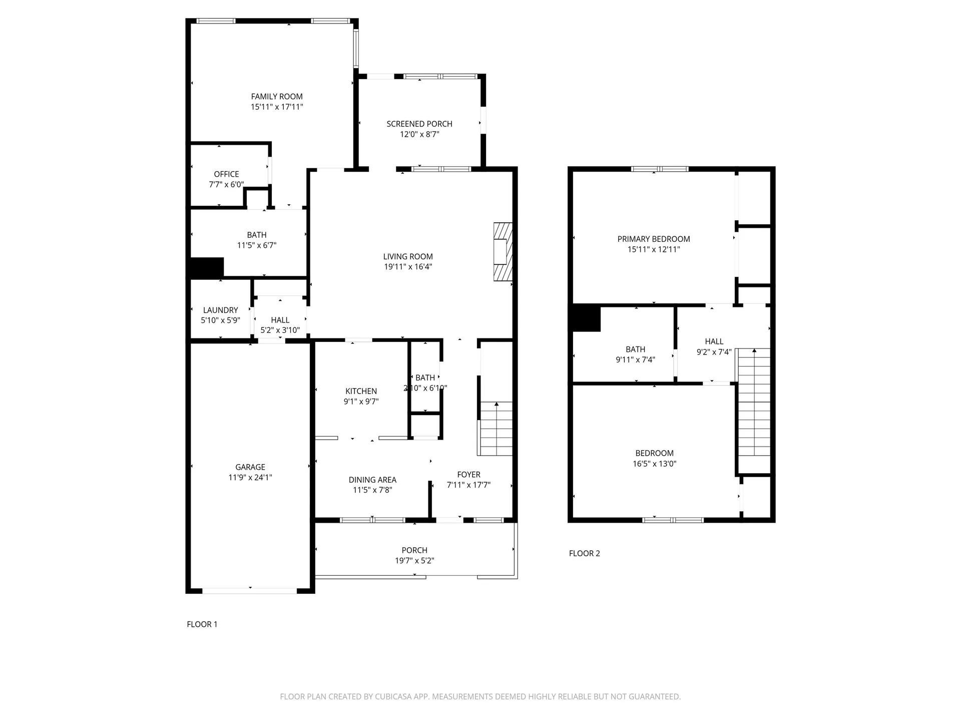
Here's your chance to be part of one of Bow, NH's most sought-after 55+ communities! Enjoy easy living with landscaping and snow removal all taken care of for you, leaving more time to relax on your covered front porch or by the cozy gas fireplace in the living room. This spacious two-level townhouse condo offers 1,889 square feet of comfortable living space, including a first-floor primary suite complete with a walk-in closet and private bath. The large living room features a welcoming gas fireplace and opens to a bright sunroom, which leads out to a private patio-perfect for enjoying the outdoors in every season. Additional highlights include a 1st floor powder room for guests, a convenient first-floor laundry area, and direct access to the attached garage. Upstairs, you'll find two additional rooms and a full bath-ideal for guests, an office, or hobbies. With abundant closet space throughout, this home combines comfort, convenience, and charm in a wonderful community setting. Dimensions in the floor plans are estimated; buyers and their agents should verify if exact measurements are required. Open House Scheduled October 26th 11:00am - 1:00pm

Listing Tools

Property Details of 4 Bow Center Road, Unit B2

Property Details

Interior Features

Exterior Features

Utilities and Appliances

Community

Map Location

Driving Directions

Broker Reciprocity 

Copyright 2025 PrimeMLS, Inc. All rights reserved. This information is deemed reliable, but not guaranteed. The data relating to real estate displayed on this display comes in part from the IDX Program of PrimeMLS. The information being provided is for consumers’ personal, non-commercial use and may not be used for any purpose other than to identify prospective properties consumers may be interested in purchasing. Data last updated November 9, 2025 10:52 AM EST

 

Hi there! How can we help you?

Contact us using the form below or give us a call.

Send Us A Message:

I agree to receive marketing and customer service calls and text messages from Peloquin Realty & Property Management. To opt out, you can reply 'stop' at any time or click the unsubscribe link in the emails. Consent is not a condition of purchase. Msg/data rates may apply. Msg frequency varies. Privacy Policy.

Do not fill in this field:

This site is protected by reCAPTCHA and the Google Privacy Policy and Terms of Service apply.

Hi there! How can we help you?

Contact us using the form below or give us a call.

Send Us A Message:

Do not fill in this field:

This site is protected by reCAPTCHA and the Google Privacy Policy and Terms of Service apply.

Hi there! How can we help you?

Contact us using the form below or give us a call.

Send Us A Message:

Do not fill in this field:

This site is protected by reCAPTCHA and the Google Privacy Policy and Terms of Service apply.

Do not fill in this field:

This site is protected by reCAPTCHA and the Google Privacy Policy and Terms of Service apply.

Do not fill in this field:

This site is protected by reCAPTCHA and the Google Privacy Policy and Terms of Service apply.

Do not fill in this field:

This site is protected by reCAPTCHA and the Google Privacy Policy and Terms of Service apply.

$

Do not fill in this field:

This site is protected by reCAPTCHA and the Google Privacy Policy and Terms of Service apply.