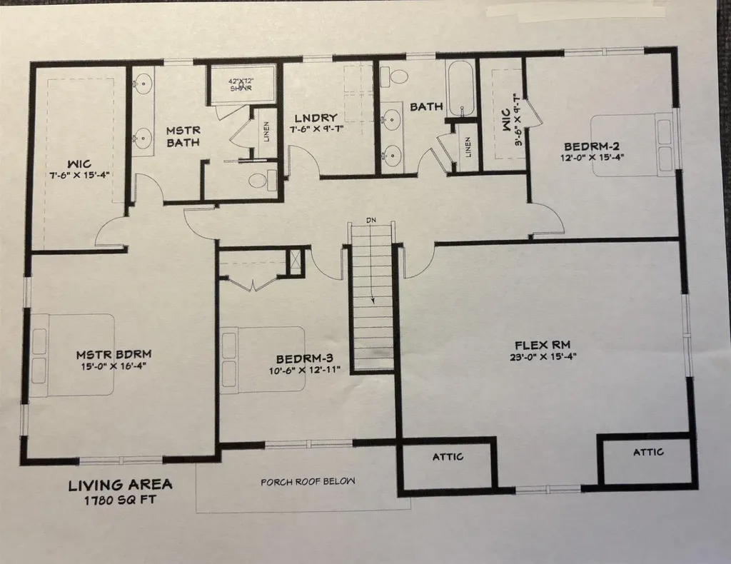
NEW CONSTRUCTION -- Gorgeous 4 BR, 3 BA single-family home in one of Nashua's most desirable neighborhoods-just steps from Greeley Park! Modern open-concept design with gorgeous hardwood floors, a striking staircase, and flexible first-floor space ideal for an office or guest room. Upstairs offers 3 spacious bedrooms, laundry, and a 23' x 15' bonus room-perfect for a gym, media, or playroom. The primary suite features a large walk-in closet and spa-inspired bath. -- LOTS OF UPGRADES & OPTIONS STILL AVAILABLE! -- Exceptional craftsmanship, architectural detail, and an unbeatable location near parks, trails, and downtown amenities. Seller is a licensed real estate broker. Building plans may not reflect changes made during construction.

Listing Tools

Property Details of 111 Concord Street

Property Details

Interior Features

Exterior Features

Utilities and Appliances

Community

Map Location

Driving Directions

Broker Reciprocity 

Copyright 2025 PrimeMLS, Inc. All rights reserved. This information is deemed reliable, but not guaranteed. The data relating to real estate displayed on this display comes in part from the IDX Program of PrimeMLS. The information being provided is for consumers’ personal, non-commercial use and may not be used for any purpose other than to identify prospective properties consumers may be interested in purchasing. Data last updated November 9, 2025 10:37 AM EST

 

Hi there! How can we help you?

Contact us using the form below or give us a call.

Send Us A Message:

I agree to receive marketing and customer service calls and text messages from Peloquin Realty & Property Management. To opt out, you can reply 'stop' at any time or click the unsubscribe link in the emails. Consent is not a condition of purchase. Msg/data rates may apply. Msg frequency varies. Privacy Policy.

Do not fill in this field:

This site is protected by reCAPTCHA and the Google Privacy Policy and Terms of Service apply.

Hi there! How can we help you?

Contact us using the form below or give us a call.

Send Us A Message:

Do not fill in this field:

This site is protected by reCAPTCHA and the Google Privacy Policy and Terms of Service apply.

Hi there! How can we help you?

Contact us using the form below or give us a call.

Send Us A Message:

Do not fill in this field:

This site is protected by reCAPTCHA and the Google Privacy Policy and Terms of Service apply.

Do not fill in this field:

This site is protected by reCAPTCHA and the Google Privacy Policy and Terms of Service apply.

Do not fill in this field:

This site is protected by reCAPTCHA and the Google Privacy Policy and Terms of Service apply.

Do not fill in this field:

This site is protected by reCAPTCHA and the Google Privacy Policy and Terms of Service apply.

$

Do not fill in this field:

This site is protected by reCAPTCHA and the Google Privacy Policy and Terms of Service apply.