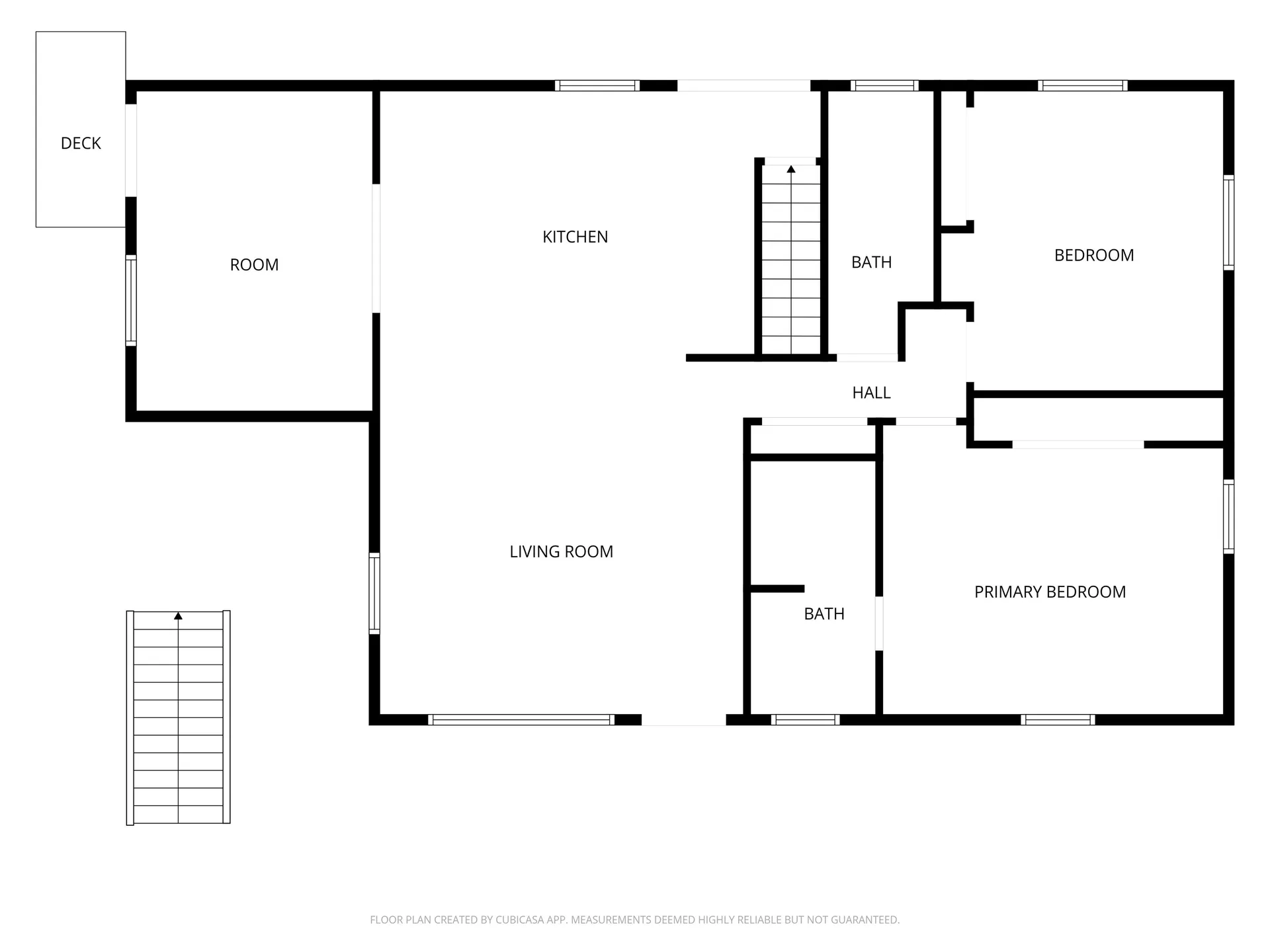
How about a house with an accessory unit for multi generational living or extra income? This Gambrel home is actually a two family. Owner occupy one unit and generate income from the other. Previously the owner's unit, first floor apartment has 2 bedrooms, 2 baths and 2 more rooms in the finished, walkout lower level. The kitchen is designed for show as well as function with a large center island, granite counters and extra wall oven. All within steps of slider and deck to sunny yard. Feel right at home with generous open living floor plan and verisatile entry room. Pinterest worthy remodeled main bathroom. Then the bonus - an upstairs 2 bedroom apartment with a open living room and large country kitchen. Comfortable layout and quality remodeled bathroom. Spare room offers space an office, dining nook or storage. Oversized barn fits four vechicles and has a walkup attic and 200amp electrical service. Driveway access is from side street and there is plenty of parking. Currently rented unit 1 $2,750 tenant at will and unit 2 leased at $2,450 until Jan 31, including heat/hot water. Photos are from previous occupants. Raymond is situated between Manchester and the Seacoast and home to Patuckaway lake and the infamous Tuckaway Tavern. Quick access to route 102 and to route 101.

Listing Tools

Property Details of 17 Old Fremont Road

Property Details

Interior Features

Exterior Features

Utilities and Appliances

Map Location

Driving Directions

Broker Reciprocity 

Copyright 2025 PrimeMLS, Inc. All rights reserved. This information is deemed reliable, but not guaranteed. The data relating to real estate displayed on this display comes in part from the IDX Program of PrimeMLS. The information being provided is for consumers’ personal, non-commercial use and may not be used for any purpose other than to identify prospective properties consumers may be interested in purchasing. Data last updated November 8, 2025 5:08 PM EST

 

Hi there! How can we help you?

Contact us using the form below or give us a call.

Send Us A Message:

I agree to receive marketing and customer service calls and text messages from Peloquin Realty & Property Management. To opt out, you can reply 'stop' at any time or click the unsubscribe link in the emails. Consent is not a condition of purchase. Msg/data rates may apply. Msg frequency varies. Privacy Policy.

Do not fill in this field:

This site is protected by reCAPTCHA and the Google Privacy Policy and Terms of Service apply.

Hi there! How can we help you?

Contact us using the form below or give us a call.

Send Us A Message:

Do not fill in this field:

This site is protected by reCAPTCHA and the Google Privacy Policy and Terms of Service apply.

Hi there! How can we help you?

Contact us using the form below or give us a call.

Send Us A Message:

Do not fill in this field:

This site is protected by reCAPTCHA and the Google Privacy Policy and Terms of Service apply.

Do not fill in this field:

This site is protected by reCAPTCHA and the Google Privacy Policy and Terms of Service apply.

Do not fill in this field:

This site is protected by reCAPTCHA and the Google Privacy Policy and Terms of Service apply.

Do not fill in this field:

This site is protected by reCAPTCHA and the Google Privacy Policy and Terms of Service apply.

$

Do not fill in this field:

This site is protected by reCAPTCHA and the Google Privacy Policy and Terms of Service apply.