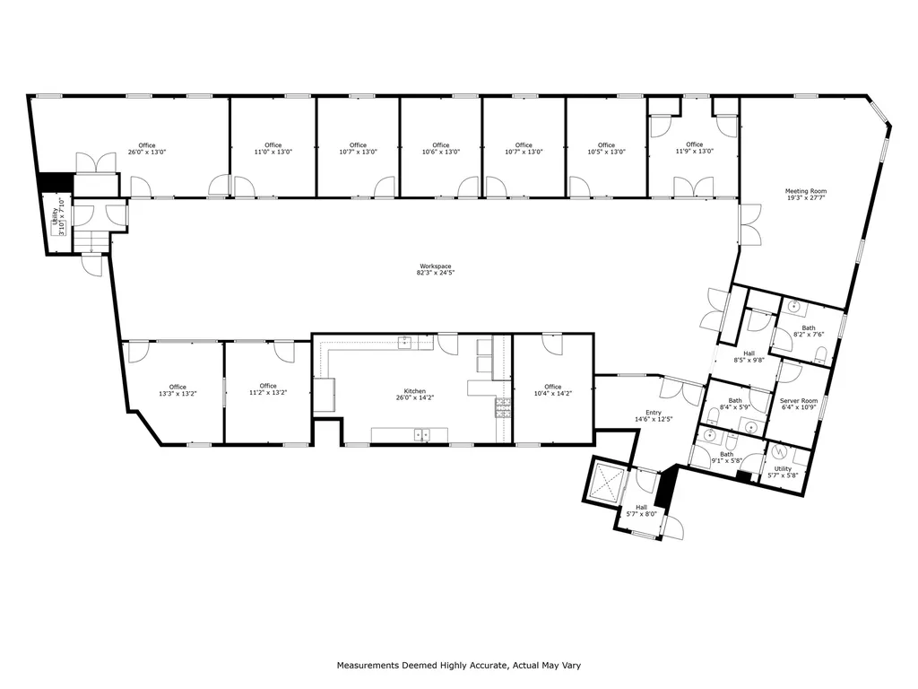
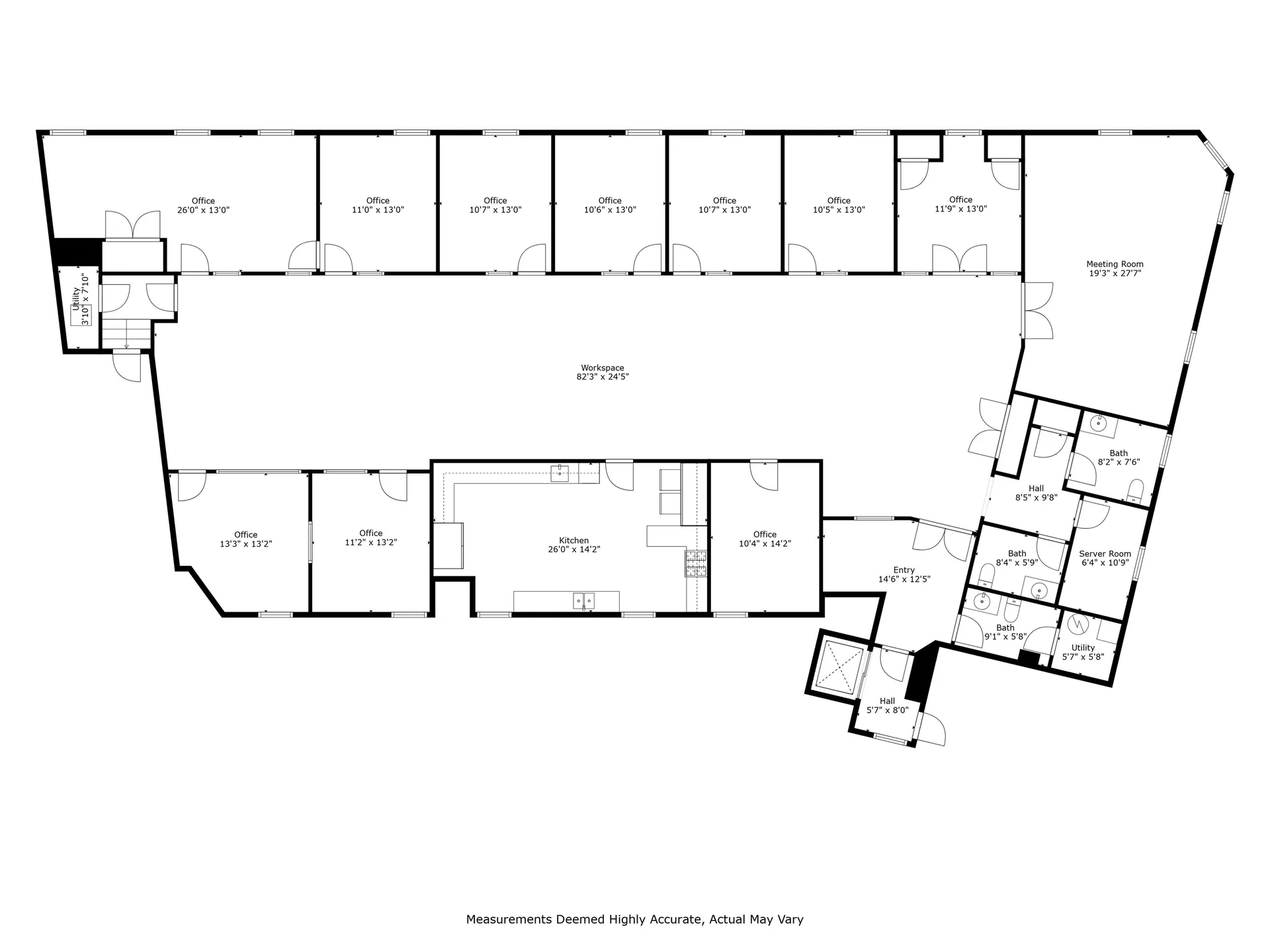
Motivated Seller! An exceptional opportunity in the heart of downtown Portsmouth! This 4,600± sq.ft. third-floor luxury commercial condominium offers a premier location with the rare potential for residential conversion. Positioned between Market St. and Congress St., this historic 1860 building has been meticulously renovated inside and out, seamlessly blending timeless architectural character with modern comfort and functionality. The property also offers direct access to Market St., placing you just steps from the center of downtown activity. Inside, a bright and flexible open layout features nine private offices, two spacious conference rooms, a welcoming reception area, three bathrooms and direct elevator access. Surrounded by expansive windows on nearly every side. A standout feature is the professional-grade kitchen, fully outfitted with commercial stainless steel appliances, a hood system and refrigeration perfect for office use, entertaining or event hosting. Just steps from the municipal parking garage and surrounded by Portsmouth’s vibrant downtown renowned for its award-winning restaurants, cafs, boutiques, galleries and waterfront this space delivers an unmatched combination of location, character and versatility in one of New Hampshire’s most sought-after markets.

Listing Tools

Property Details of 20 Ladd Street

Property Details

Interior Features

Map Location

Driving Directions

Broker Reciprocity 

Copyright 2026 PrimeMLS, Inc. All rights reserved. This information is deemed reliable, but not guaranteed. The data relating to real estate displayed on this display comes in part from the IDX Program of PrimeMLS. The information being provided is for consumers’ personal, non-commercial use and may not be used for any purpose other than to identify prospective properties consumers may be interested in purchasing. Data last updated February 13, 2026 1:22 AM EST

 

Hi there! How can we help you?

Contact us using the form below or give us a call.

Send Us A Message:

I agree to receive marketing and customer service calls and text messages from Peloquin Realty & Property Management. To opt out, you can reply 'stop' at any time or click the unsubscribe link in the emails. Consent is not a condition of purchase. Msg/data rates may apply. Msg frequency varies. Privacy Policy.

Do not fill in this field:

This site is protected by reCAPTCHA and the Google Privacy Policy and Terms of Service apply.

Hi there! How can we help you?

Contact us using the form below or give us a call.

Send Us A Message:

Do not fill in this field:

This site is protected by reCAPTCHA and the Google Privacy Policy and Terms of Service apply.

Hi there! How can we help you?

Contact us using the form below or give us a call.

Send Us A Message:

Do not fill in this field:

This site is protected by reCAPTCHA and the Google Privacy Policy and Terms of Service apply.

Do not fill in this field:

This site is protected by reCAPTCHA and the Google Privacy Policy and Terms of Service apply.

Do not fill in this field:

This site is protected by reCAPTCHA and the Google Privacy Policy and Terms of Service apply.

Do not fill in this field:

This site is protected by reCAPTCHA and the Google Privacy Policy and Terms of Service apply.

$

Do not fill in this field:

This site is protected by reCAPTCHA and the Google Privacy Policy and Terms of Service apply.