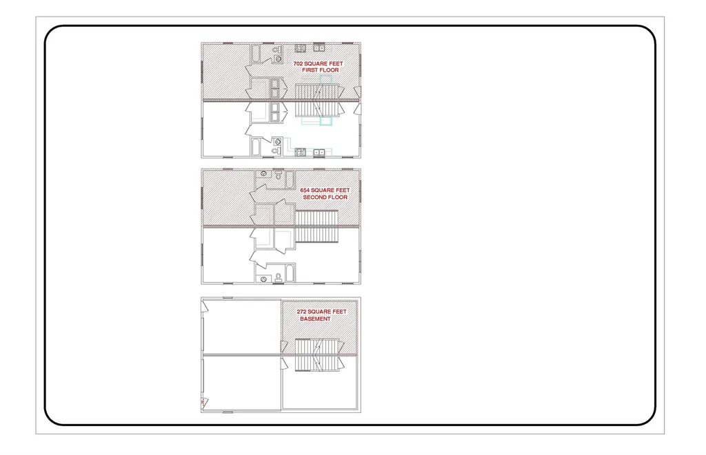
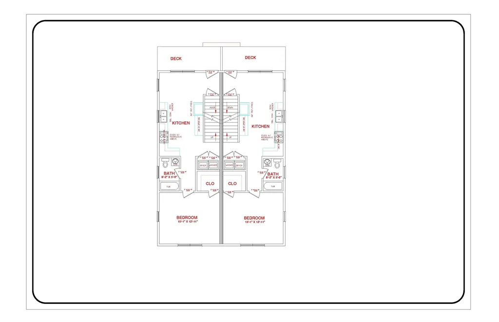
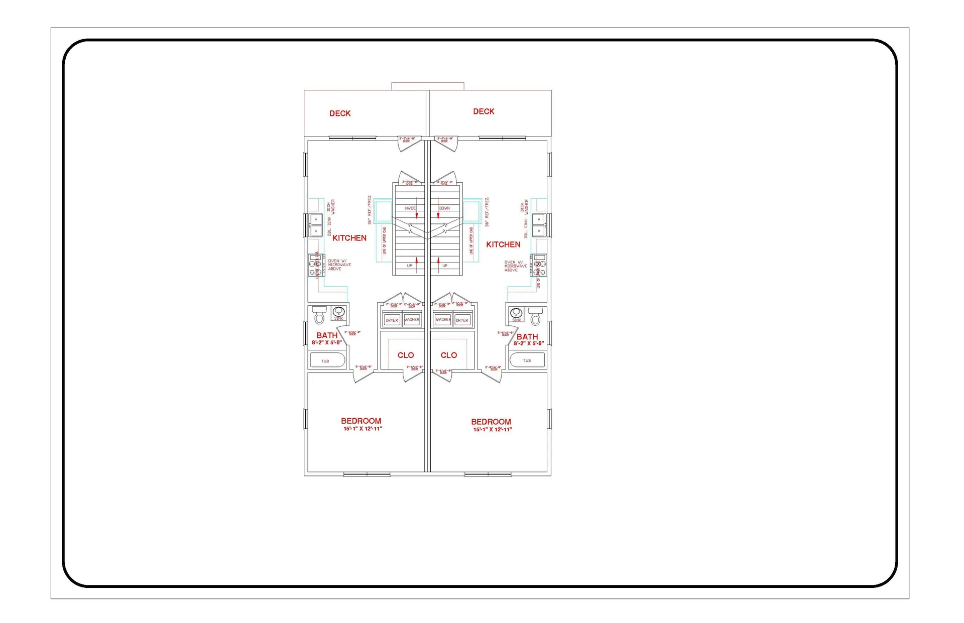
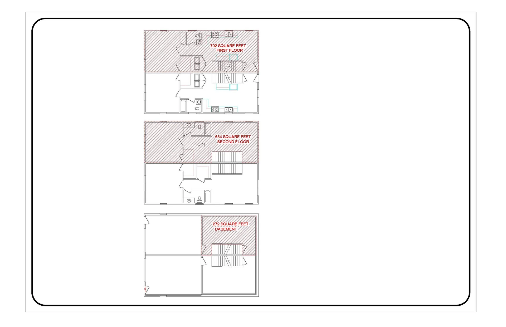
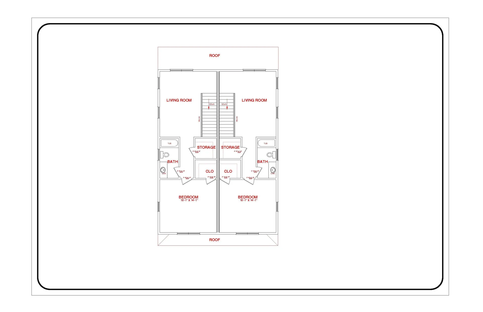
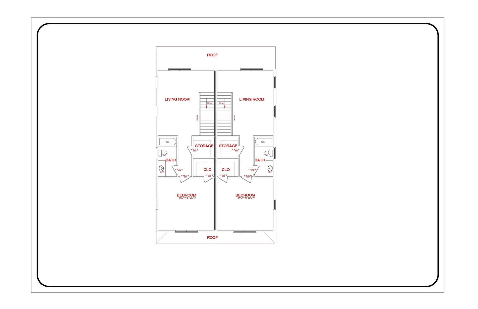
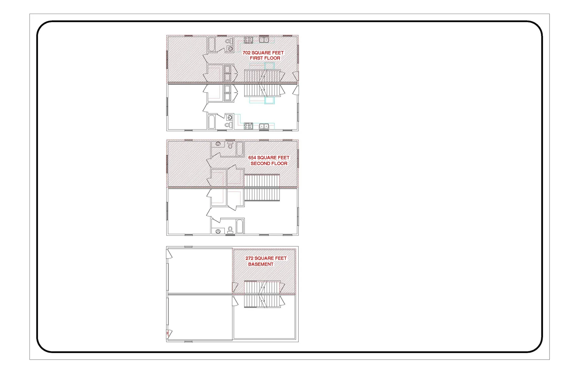
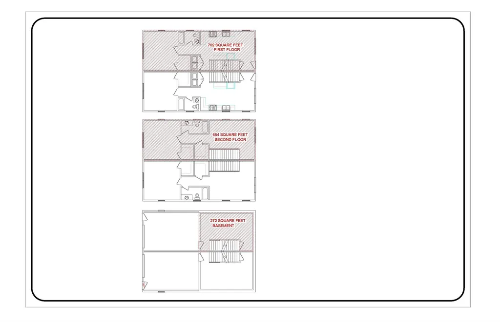
Welcome to Phase 2 at Del Ray Place. This 55+ duplex unit townhouse features luxurious finishes! Discover your dream home in this beautifully finished duplex unit in building 3. This is where quality meets convenience! This exceptional 2-bedroom, 2-bathroom unit offers an inviting and versatile living space perfect for those seeking comfort and style. This community is designed for residents aged 55 and older, making it an ideal choice for those looking to invest in a vibrant and inclusive neighborhood. With one of the bedrooms conveniently located on the first floor, this unit offers easy accessibility and privacy for guests or family members. Don't miss out on this rare opportunity to own a gorgeous condo in a sought-after community. Schedule a showing today and experience the perfect blend of luxury and convenience! GPS Del Ray Drive. Road is across from it. Drive all the way to the top. Agent is related to seller. To be completed spring 2026. Photos are for design finishing purposes only. Actual layout of the home will differ from photos.

Listing Tools

Property Details of 4 Cypress Lane, Unit 10

Property Details

Interior Features

Exterior Features

Utilities and Appliances

Community

Other Details

Map Location

Driving Directions

Broker Reciprocity 

Copyright 2026 PrimeMLS, Inc. All rights reserved. This information is deemed reliable, but not guaranteed. The data relating to real estate displayed on this display comes in part from the IDX Program of PrimeMLS. The information being provided is for consumers’ personal, non-commercial use and may not be used for any purpose other than to identify prospective properties consumers may be interested in purchasing. Data last updated April 14, 2026 1:52 AM EDT

 

Hi there! How can we help you?

Contact us using the form below or give us a call.

Send Us A Message:

I agree to receive marketing and customer service calls and text messages from Peloquin Realty & Property Management. To opt out, you can reply 'stop' at any time or click the unsubscribe link in the emails. Consent is not a condition of purchase. Msg/data rates may apply. Msg frequency varies. Privacy Policy.

Do not fill in this field:

This site is protected by reCAPTCHA and the Google Privacy Policy and Terms of Service apply.

Hi there! How can we help you?

Contact us using the form below or give us a call.

Send Us A Message:

Do not fill in this field:

This site is protected by reCAPTCHA and the Google Privacy Policy and Terms of Service apply.

Hi there! How can we help you?

Contact us using the form below or give us a call.

Send Us A Message:

Do not fill in this field:

This site is protected by reCAPTCHA and the Google Privacy Policy and Terms of Service apply.

Do not fill in this field:

This site is protected by reCAPTCHA and the Google Privacy Policy and Terms of Service apply.

Do not fill in this field:

This site is protected by reCAPTCHA and the Google Privacy Policy and Terms of Service apply.

Do not fill in this field:

This site is protected by reCAPTCHA and the Google Privacy Policy and Terms of Service apply.

$

Do not fill in this field:

This site is protected by reCAPTCHA and the Google Privacy Policy and Terms of Service apply.