Prime Commercial Property For Sale - 450 Hanover Street, Manchester, NH , Unlock the potential of this versatile, freestanding commercial building Offering over 3,000 sq. ft. of well-maintained space, this property is ideally suited for assembly groups, educational facilities, medical or office use. Situated in a R2 zoning district, this building combines function, flexibility, and a prime location with excellent visibility and easy access to major routes including I-93 and Route 101. Property Highlights: Freestanding building - full exclusive use' - High ceilings throughout - spacious, open interior layout' Efficient heating and cooling systems for year-round comfort. Two bathrooms for added convenience. , Fenced perimeter for privacy and security, Ample street parking available for tenants and visitors, Zoned R2, allowing for a variety of business or institutional uses. Whether you're an organization looking to expand, an investor seeking a flexible-use property, or a business owner ready to establish in a central location, this property checks all the boxes. ?? Location Benefits: Minutes from Downtown Manchester, Quick and easy access to I-93 and Route 101, Surrounded by residential and commercial activity. Don't miss this opportunity to own a solid commercial asset in a growing area.

Listing Tools

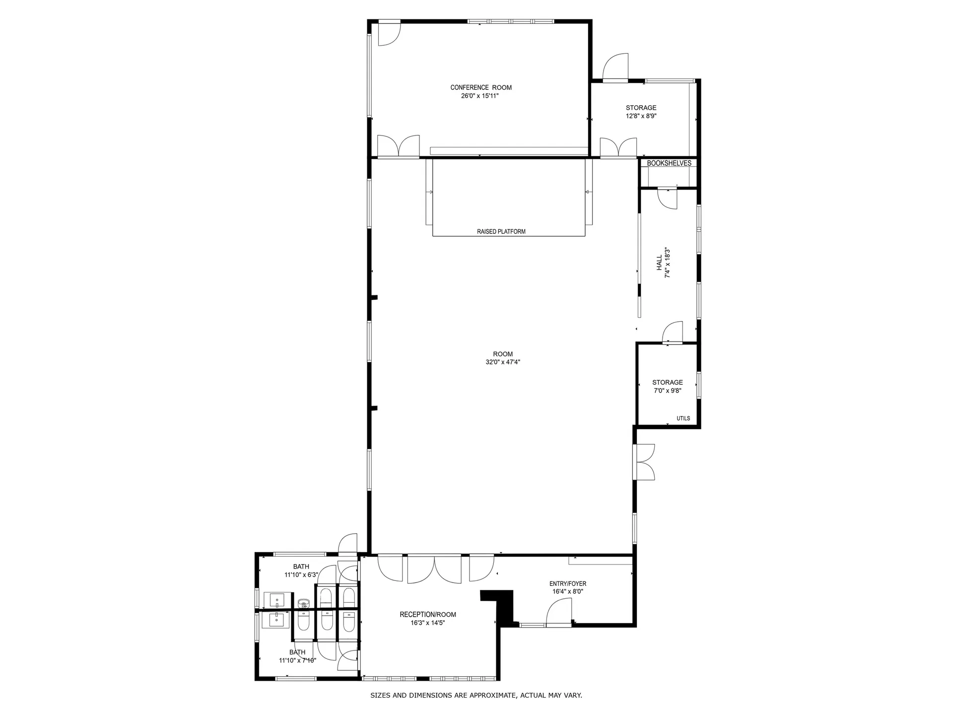
Property Details of 450 Hanover Street

Property Details

Map Location

Driving Directions

Broker Reciprocity 

Copyright 2025 PrimeMLS, Inc. All rights reserved. This information is deemed reliable, but not guaranteed. The data relating to real estate displayed on this display comes in part from the IDX Program of PrimeMLS. The information being provided is for consumers’ personal, non-commercial use and may not be used for any purpose other than to identify prospective properties consumers may be interested in purchasing. Data last updated November 14, 2025 6:38 AM EST

 

Hi there! How can we help you?

Contact us using the form below or give us a call.

Send Us A Message:

I agree to receive marketing and customer service calls and text messages from Peloquin Realty & Property Management. To opt out, you can reply 'stop' at any time or click the unsubscribe link in the emails. Consent is not a condition of purchase. Msg/data rates may apply. Msg frequency varies. Privacy Policy.

Do not fill in this field:

This site is protected by reCAPTCHA and the Google Privacy Policy and Terms of Service apply.

Hi there! How can we help you?

Contact us using the form below or give us a call.

Send Us A Message:

Do not fill in this field:

This site is protected by reCAPTCHA and the Google Privacy Policy and Terms of Service apply.

Hi there! How can we help you?

Contact us using the form below or give us a call.

Send Us A Message:

Do not fill in this field:

This site is protected by reCAPTCHA and the Google Privacy Policy and Terms of Service apply.

Do not fill in this field:

This site is protected by reCAPTCHA and the Google Privacy Policy and Terms of Service apply.

Do not fill in this field:

This site is protected by reCAPTCHA and the Google Privacy Policy and Terms of Service apply.

Do not fill in this field:

This site is protected by reCAPTCHA and the Google Privacy Policy and Terms of Service apply.

$

Do not fill in this field:

This site is protected by reCAPTCHA and the Google Privacy Policy and Terms of Service apply.